Prodej rodinného domu 217 m², Brno - Brněnské Ivanovice

- Adresa Glocova 378/52, Brno - Brněnské Ivanovice
- Ev. č. RT1303-38532
- Typ rodinné domy
- Plocha 217 m²
9 990 000 Kč (46 037 Kč za m²)
včetně provize RK
Prodej rodinné domy, 217 m² - Brno - Brněnské Ivanovice
Hledáte rodinný dům na klidné ulici s velkým potenciálem, který si můžete přizpůsobit přesně podle svých představ? Oceníte prostornou zahradu a možnost dvougeneračního bydlení? Pokud ano, máme pro vás ideální nabídku.
Nabízíme řadový rodinný dům ke kompletní rekonstrukci, který se nachází na ulici Glocova 52 v Brně – Tuřanech. Dům se nachází v klidné ulici a díky své dispozici je vhodný nejen pro rodinné bydlení, ale i pro vícegenerační využití. Pozemek má celkovou plochu 842 m², z čehož 149 m² tvoří zastavěná plocha s nádvořím a 592 m² prostorná zahrada, ideální pro relaxaci nebo zahradničení. Uliční šíře cca 9 m.
Dispozice 5+2:
1.NP: závětří (2,08 m2), vstup (8,27 m2), chodba (5,86 m2), kuchyň (9,35 m2), ob. pokoj (18,68 m2), pokoj (16,11 m2), ložnice (9,54 m2), veranda (18,90 m2), slepé schodiště (2 m2), koupelna s WC (9,40 m2), komora (9,38 m2), hobby (8,58 m2).
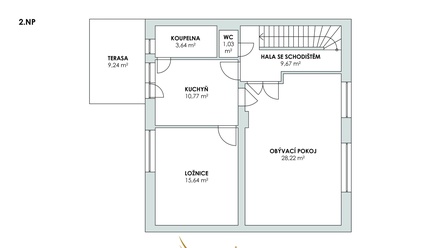
2.NP: hala se schodištěm (9,67 m2), ob. pokoj (28,22 m2), ložnice (15,64 m2), kuchyň (10,77 m2), WC (1,03 m2), koupelna (3,64 m2), terasa (9,24 m2).
3.NP: místnost hobby (20,4 m2), schodiště (6,53 m2), sklad (3,04 m2), půdy (19,92 m2 a 21,56 m2).
Celková užitná plocha domu činí 217 m².
Dům je ideální volbou pro všechny, kdo hledají bydlení s možností realizace vlastních představ. Lokalita je velmi atraktivní – v okolí najdete dostatek zeleně pro příjemné procházky nebo sportovní aktivity, přesto je zde výborná občanská vybavenost a rychlá dostupnost do centra města i na dálnici.
Pro více informací nebo domluvení prohlídky nás neváhejte kontaktovat. Energetický štítek zatím nebyl dodán, proto uvádíme třídu G.
Cena je konečná.
Údaje k nemovitosti
| Kategorie | Rodinné domy |
| Lokalita | Glocova 378/52, Brno - Brněnské Ivanovice |
| Okres | Brno-město |
| Velikost | 5 a více pokojů |
| Užitná plocha | 217 m² |
| Plocha pozemku | 842 m² |
| Zastavěná plocha | 149 m² |
| Plocha zahrady | 592 m² |
| Počet podlaží | 3 |
| Stav objektu | Špatný |
| Budova | Cihlová |
| Typ domu | Patrový |
| Poloha objektu | Řadový |
| Umístění objektu | Klidná část obce |
| Zástavba | Obytná |
| Rok kolaudace | 1990 |
| Zařízený | Částečně |
| Výtah | ne |
| Terasa | ano |
| Voda | Dálkový vodovod |
| Elektřina | 230V |
| Plyn | Plynovod |
| Odpad | Veřejná kanalizace |























