Prodej rodinného domu 87 m², Újezd nade Mží

- Adresa Újezd nade Mží
- Ev. č. RT1609-910626
- Typ rodinné domy
- Plocha 87 m²
6 400 000 Kč (73 563 Kč za m²)
V případě více zájemců může RK využít pro výběr kupujícího formu aukce.
Prodej rodinného domu,4KK,87m², Újezd nade Mží
Projekt výstavby rodinného domu na klíč – Újezd nade Mží, pozemek 1081 m²
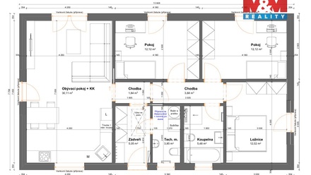
Nabízíme projekt přízemního rodinného domu 4+1 o užitné ploše 87 m², který vám postavíme na klíč dle vašich představ. Dům zatím nestojí, což vám umožňuje upravit dispozici, materiály i design přesně podle sebe.
Plánovaná dispozice:
Obývací pokoj + kuchyňský kout (30,11 m²), ložnice (12,2 m²), pokoj 1 (12,12 m²), pokoj 2 (12,12 m²), koupelna (5,48 m²), technická místnost (3,85 m²), zádveří (5,05 m²), chodby (1,84 m² + 3,68 m²)
Pozemek 1081 m² nabízí prostor pro zahradu, bazén nebo dětské hřiště.
Veškeré inženýrské sítě jsou připraveny na hranici pozemku.
Lokalita Újezd nade Mží:
Klidné prostředí západně od Plzně, blízkost přírody, cyklostezky, škola, školka, obchod i služby v dosahu.
Výhody:
Výstavba na klíč bez starostí
Možnost individuálních úprav
Skvělá investice i trvalé rodinné bydlení
Zaujala vás nabídka? Zavolejte makléři pro více informací.
Údaje k nemovitosti
| Kategorie | Rodinné domy |
| Lokalita | Újezd nade Mží |
| Okres | Plzeň-sever |
| Velikost | 4 pokoje |
| Vlastnictví | Osobní |
| Užitná plocha | 87 m² |
| Plocha pozemku | 1.081 m² |
| Počet podlaží | 1 |
| Stav objektu | Novostavba |
| Budova | Cihlová |
| Typ domu | Přízemní |
| Poloha objektu | Samostatný |
| Umístění objektu | Klidná část obce |
| Zařízený | Ne |
| Bezbariérový | ano |
| Doprava | Autobus |
| Voda | Dálkový vodovod |
| Elektřina | 230V, 400V |
| Odpad | ČOV pro celý objekt |





















