Prodej rodinného domu 235 m², Uherské Hradiště

- Adresa Na Hraničkách, Uherské Hradiště
- Ev. č. RT1403-03352
- Typ rodinné domy
- Plocha 235 m²
14 900 000 Kč (63 404 Kč za m²)
včetně poplatků, včetně provize, včetně právního servisu
Prodej, hrubá stavba luxusního rodinného domu 4+kk, 235 m², Uherské Hradiště, Na Hraničkách - Mařatice
Nabízíme na prodej dvě hrubé stavby, luxusní prostorné dvoupodlažní domy ve vyhledávané vilové lokalitě Na Hraničkách v Mařaticích. Jedná se o funkcionalistické minimalistické vily inspirované stylem Le Corbusiera, které spojují moderní technologie, nadčasovou architekturu a promyšlené dispoziční řešení.
Základní údaje:
• Zastavěná plocha: 171 m²
• Celková plocha pozemku: 327 m²
• Zahrada za domem: 156 m²
• Plocha pro parkování před domem: 80 m² (až pro tři vozy)
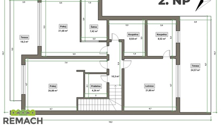
Dispozice domu:
Přízemí
• 95 m² - obytný prostor, kuchyně, jídelna, zázemí, toaleta
• 40 m² dvougaráž (s nízkým spádem 1,5 %, vhodná i pro supersporty)
• 30 m² terasa
1. patro
• 100 m² obytné plochy - 3 pokoje, 2x koupelna se sprchou i vanou, 2x šatna, prádelna, žehlírna
• zadní terasa 25 m² (u hlavní ložnice)
• přední terasa 18 m² (přístupná ze dvou pokojů)
Vybavení a standard:
Dům je velkoryse prostorově navržen. Každý pokoj má vlastní šatnu s plánovanými vestavěnými skříněmi, nechybí dvě koupelny (každá s vanou i sprchou), prádelna a žehlírna.
Stropy se světlou výškou 2,65 m nabídnou infinity podhled – prosklení od podlahy ke stropu a interiérové dveře o výšce 2,3 m. Do podhledu (výška 30 cm) budou integrovány rozvody rekuperace a klimatizace s tichým potrubím.
Příprava je i pro prosklený krb (ve tvaru U nebo L) a ustupující podlaží s krytou terasou. Na střeše bude umístěno tepelné čerpadlo v akustickém krytu.
Technologie a konstrukce
Domy jsou navrženy jako nízkoenergetické – obvodové zdivo tvoří tvárnice Porotherm 38T Profi uložené na maltové lože, doplněné o termo omítku.
Lokalita a výhody
Jedná se o jeden z posledních volných pozemků ve vilové části Mařatic – klidné, bezpečné a žádané čtvrti.
• dům stojí na kopci - rozhled a nehrozí záplavy
• 12–15 minut chůzí do centra města
• 300 metrů od domu škola, školka, obchod a sportoviště, autobusová zastávka oběma směry
Stav výstavby:
Do poloviny listopadu bude dokončena hrubá stavba.
Tento dům představuje jedinečné spojení luxusu, funkčnosti a moderního designu v jedné z nejatraktivnějších lokalit města. PENB s třídou B a hodnotou 73 kWh/m² byla počítána bez rekuperace. Po instalaci rekuperace bude výsledná hodnota A.
V ceně 14.900.000 Kč je pozemek, hrubá stavba, včetně přípojek a včetně vydaného a právoplatného stavebního povolení a stavební dokumentace, včetně právního servisu a provize. V případě přání budoucího klienta je možná dohoda se stavební firmou kompletní dokončení celého domu a pan architekt provede veškeré zabezpečení a stoprocentní dodělání stavby přivede až ke kolaudaci.
Údaje k nemovitosti
| Kategorie | Rodinné domy |
| Lokalita | Na Hraničkách, Uherské Hradiště |
| Okres | Uherské Hradiště |
| Velikost | 4 pokoje |
| Nízkoenergetický | ano |
| Užitná plocha | 235 m² |
| Plocha pozemku | 327 m² |
| Zastavěná plocha | 171 m² |
| Plocha zahrady | 156 m² |
| Počet podlaží | 2 |
| Stav objektu | Ve výstavbě |
| Budova | Cihlová |
| Typ domu | Patrový |
| Poloha objektu | Rohový |
| Umístění objektu | Klidná část obce |
| Zástavba | Obytná |
| Rok výstavby | 2025 |
| Míst k parkování | 3 |
| Parkování | Ano |
| Garáž | Ano |
| Počet garáží | 2 |
| Rozměry - výška stropu | 2,65 m |
| Balkón | ano |
| Terasa | ano |
| Komunikace | Betonová, Asfaltová |
| Doprava | Vlak, Dálnice, Silnice, MHD, Autobus |
| Voda | Dálkový vodovod |
| Elektřina | 230V, 400V |
| Odpad | Veřejná kanalizace |

Palackého náměstí 175
Uherské Hradiště
+420 603 744 244
machacek@remach.cz
Zobraz 40 nabídek





















