Prodej rodinného domu 185 m², Syrovice

- Adresa Syrovice 726, Syrovice
- Ev. č. RT1352-03570
- Typ rodinné domy
- Plocha 185 m²
19 495 000 Kč (105 378 Kč za m²)
včetně provize, včetně právního servisu
Prodej atraktivní novostavby RD 5+kk s dvougaráží v obci Syrovice (okr. Brno-venkov), CP pozemku 843 m2
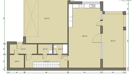
Dovolujeme si vám nabídnout ke koupi moderní RD 5+kk s prostornou dvougaráží a terasou ve vyhledávané obci Syrovice u Brna (okr. Brno-venkov). Jedná se o koncový řadový dům s rovinatým pozemkem, bezproblémovým parkováním a klidnou ulicí. Celková plocha domu činí 284 m2, užitná 185 m2 a plocha pozemku 843 m2.
Dům byl dokončen v roce 2024 a jeho výjimečnost podtrhuje nenápadné architektonického pojetí při současném zachování rozlehlého obytného prostoru a soukromí. Výborně řešené dispozice nabízí neprůchozí pokoje, 3x koupelnu, 3x toaletu, prostornou šatnu i technickou místnost na pračku a šušičku prádla. Dům je napojen na kompletní inženýrské sítě: obecní vodovod, kanalizaci, elektřinu i plyn. Pozemek je rovinatý a oplocený.
Vytápění a ohřev vody je zajištěn energeticky nenáročným a úsporným kombinovaným kondenzačním plynovým kotlem s napojením na teplovodní podlahové topení. Ke klimatické pohodě rovněž přispívají elektricky ovládané předokenní žaluzie a okna s izolačními trojskly.
Krom již zmíněného, praktického pojetí celé stavby, se k nesporným kvalitám domu řadí i dostatek parkovacích míst a prostorná garáž vhodná také pro uskladnění jízdních kol, kočárků či sezónního vybavení.
K příjemné relaxaci i aktivnímu trávení volného času s rodinou či domácím mazlíčkem notně přispívá okolní příroda. Občanská vybavenost zahrnuje veškerou infrastrukturu a služby nezbytné pro každodenní život obyvatel včetně mateřské a základní školy (1.-5. třída). Perfektní dostupnost do centra Brna (autem cca 15 min., veřejnou dopravou cca 30 min.) či do nákupního centra Olympia (autem 12 min.) jen podtrhuje atraktivitu bydlení v Syrovicích.
Fotodokumentace zobrazuje aktuální a reálný stav. Půdorys je nezávazný. Uvolnění ihned. K zajištění financování koupě tohoto domu jsme připraveni rychle a výhodně prodat nebo vykoupit vaši stávající nemovitost, popř. pomoci vyřídit hypotéku. Pro domluvení prohlídky kontaktujte uvedeného makléře.
Údaje k nemovitosti
| Kategorie | Rodinné domy |
| Lokalita | Syrovice 726, Syrovice |
| Okres | Brno-venkov |
| Velikost | 5 a více pokojů |
| Užitná plocha | 185 m² |
| Podlahová plocha | 284 m² |
| Plocha pozemku | 843 m² |
| Počet podlaží | 2 |
| Stav objektu | Novostavba |
| Budova | Cihlová |
| Typ domu | Patrový |
| Poloha objektu | Rohový |
| Umístění objektu | Klidná část obce |
| Zástavba | Obytná |
| Zařízený | Ano |
| Míst k parkování | 2 |
| Parkování | Ano |
| Garáž | Ano |
| Počet garáží | 2 |
| Terasa | ano |
| Komunikace | Dlážděná, Asfaltová |
| Doprava | Dálnice, Silnice, Autobus |
| Voda | Dálkový vodovod |
| Elektřina | 230V, 400V |
| Plyn | Plynovod |
| Odpad | Veřejná kanalizace |





























































