Prodej rodinného domu 105 m², Přimda

- Adresa Přimda - Mlýnec
- Ev. č. RT1609-885609
- Typ rodinné domy
- Plocha 105 m²
7 149 000 Kč (68 086 Kč za m²)
Prodej rodinného domu, 105 m², Přimda
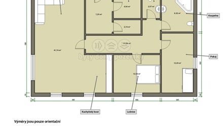
Nabízíme k prodeji moderní novostavbu samostatně stojícího rodinného domu v klidné části obce Mlýnec pod Přimdou. Dům o dispozici 4 místností nabízí užitnou plochu 105 m² a nachází se na pozemku o rozloze 1 163 m².
Stavba je navržena s důrazem na funkčnost i estetiku, využívá kvalitní materiály a poskytuje dostatek prostoru pro pohodlný rodinný život. Součástí je prostorná zahrada, která skýtá možnost vybudování terasy, bazénu či zahradního zázemí dle vlastních představ.
Mlýnec pod Přimdou je ideální lokalitou pro ty, kteří hledají klidné bydlení v blízkosti přírody a zároveň ocení výbornou dostupnost – v těsné blízkosti se nachází hraniční přechod Rozvadov a dálnice D5, které zajišťují rychlé spojení do Plzně i Německa.
Pro více informací a sjednání prohlídky nás neváhejte kontaktovat. S financováním Vám rádi pomohou naši specialisté.
Údaje k nemovitosti
| Kategorie | Rodinné domy |
| Lokalita | Přimda - Mlýnec |
| Okres | Tachov |
| Velikost | 4 pokoje |
| Vlastnictví | Osobní |
| Užitná plocha | 105 m² |
| Plocha pozemku | 1.163 m² |
| Počet podlaží | 1 |
| Stav objektu | Novostavba |
| Budova | Cihlová |
| Typ domu | Přízemní |
| Poloha objektu | Samostatný |
| Umístění objektu | Klidná část obce |
| Zařízený | Ne |
| Bezbariérový | ne |
| Míst k parkování | 4 |
| Parkování | Ano |
| Terasa | ano |
| Doprava | Silnice, Autobus |
| Voda | Studna |
| Elektřina | 230V, 400V |
| Odpad | Septik |
| Zdroj topení | Elektrokotel |










































