Prodej rodinného domu 40 m², Plasy

- Adresa Plasy - Nebřeziny
- Ev. č. RT1609-923830
- Typ rodinné domy
- Plocha 40 m²
3 500 000 Kč (87 500 Kč za m²)
Prodej rekreačního domu 3kk 40m2. Plasy,Nebřeziny
Prodej pozemku s projektem modulového rekreačního domu – Plasy, Nebřeziny (1 050 m²)
Nabízíme k prodeji pozemek o rozloze 1 050 m² v malebné lokalitě Nebřeziny, u Plas, určený dle územního plánu k rekreaci. Součástí nabídky je projekt modulového rekreačního domu s možností celoročního bydlení, který splňuje regulativy pro výstavbu v dané lokalitě.
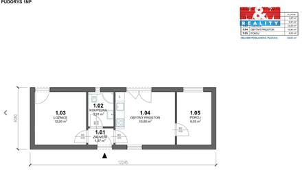
Projekt domu – dispozice 3+kk
Typ stavby: modulová konstrukce – rychlá a efektivní realizace
Užitná plocha: 40 m²
Zastavěná plocha: 48 m²
Obývací pokoj s kuchyňským koutem: 13,80 m²
Ložnice 1: 12,00 m²
Ložnice 2: 8,05 m²
Koupelna: 3,91 m²
Zádveří: 1,87 m²
Dům je napojen na samostatný vodovodní vrt a čističku odpadních vod, na kterou je již vydáno stavební povolení.
Klíčové parametry pozemku
Využití: rekreační objekt nebo dům k trvalému bydlení
Maximální zastavěná plocha: 75 m²
Terénní úpravy: započaty
Přístup: obecní komunikace
Inženýrské sítě: elektřina k dispozici
Kompletní servis výstavby. Pro více informací nám zavolejte.
Údaje k nemovitosti
| Kategorie | Rodinné domy |
| Lokalita | Plasy - Nebřeziny |
| Okres | Plzeň-sever |
| Velikost | 3 pokoje |
| Vlastnictví | Osobní |
| Užitná plocha | 40 m² |
| Plocha pozemku | 1.050 m² |
| Počet podlaží | 1 |
| Stav objektu | Novostavba |
| Budova | Smíšená |
| Typ domu | Přízemní |
| Poloha objektu | Samostatný |
| Umístění objektu | Klidná část obce |
| Zařízený | Ne |
| Bezbariérový | ne |
| Doprava | Silnice, Autobus |
| Voda | Studna |
| Elektřina | 230V, 400V |
| Odpad | ČOV pro celý objekt |
| Topné těleso | Podlahové vytápění |



















