Prodej bytu 3+kk 73 m², Žleby

- Adresa Žleby
- Ev. č. RT1609-896990
- Typ byty 3+kk
- Plocha 73 m²
- Vlastnictví osobní
5 154 556 Kč (70 610 Kč za m²)
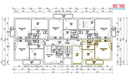
Prodej bytu 3+kk, 72.8 m², Žleby
Tento moderní byt 3+kk vznikne v novostavbě bytového domu ve Žlebech, kde pokračuje úspěšný projekt svou 2. etapou.
Byt o dispozici 2+kk se nachází ve 2.NP zděného domu, je v osobním vlastnictví a má celkovou plochu 72,8 m² (byt 63,4 m², balkón 6,6 m² a 2,8 m² sklep) a bude připraven k nastěhování na konci roku 2026.
Pro budoucího majitele bylo myšleno na vše, proto ke každému bytu patří vlastní parkovací stání, sklepní kóje a nechybí ani společné prostory jako je kočárkárna, technická a úklidová místnost. Noví majitelé se mohou těšit na velmi úsporné bydlení (energetická tř. B), ohřev vody i vytápění si každý reguluje vlastním plynovým kotlem.
Obec Žleby nabízí kompletní občanskou vybavenost a velmi dobrou dostupnost do Čáslavi (asi 5 minut) a ostatních okolních měst.
Pro rezervaci Vám stačí pouze 13,6 % z kupní ceny, zbytek uhradíte až po kolaudaci bytu. Pro více informací kontaktujte makléře nebo navštivte stránky projektu bytyzleby.
Údaje k nemovitosti
| Kategorie | Byty 3+kk |
| Lokalita | Žleby |
| Okres | Kutná Hora |
| Vlastnictví | Osobní |
| Užitná plocha | 73 m² |
| Počet podlaží | 4 |
| Podlaží umístění | 2. NP |
| Stav objektu | Ve výstavbě |
| Budova | Cihlová |
| Typ domu | Patrový |
| Umístění objektu | Okraj obce |
| Rok kolaudace | 2026 |
| Zařízený | Ne |
| Bezbariérový | ne |
| Míst k parkování | 1 |
| Parkování | Ano |
| Výtah | ne |
| Balkón | ano |
| Doprava | Vlak, Autobus |
| Voda | Dálkový vodovod |
| Odpad | Veřejná kanalizace |
| Zdroj topení | Plynový kotel |
| Zdroj teplé vody | Plynový kotel |

























