Pronájem rodinného domu 270 m², Velim

- Adresa Palackého 123, Velim
- Ev. č. RT1363-28710
- Typ rodinné domy
- Plocha 270 m²
40 000 Kč za měsíc (1 778 Kč za m²/rok)
+ energie, včetně provize, včetně právního servisu
Byty + ateliér + studio | Kompletně zrekonstruovaný dům v srdci Velimi
Hledáte dům, který spojuje bydlení, podnikání v jednom k pronájmu?
V klidné části obce Velim nabízíme prostorný a kompletně zrekonstruovaný rodinný dům s užitnou plochou cca 340 m², rozdělený do tří samostatných bytových jednotek a nebytového prostoru. Z něhož se nabízí 2 a 3 NP + ateliér (tetovací studio) k pronájmu.
Ideální volba pro vícegenerační bydlení nebo kombinaci s podnikáním.
Rekonstrukce probíhala postupně v letech 2022–2025 a proměnila dům v moderní a udržovanou nemovitost.
Nové rozvody elektřiny, vody, plynu, rekonstrukce střechy, oken (plastová dvojskla), podlah, omítek, topení i koupelen – vše provedeno s důrazem na kvalitu. Dům je částečně zateplen (ze dvou stran) a nachází se ve velmi dobrém technickém stavu.
Dispozice:
Přízemí
Byt 2+kk (62,8 m²) se samostatným vstupem – dlouhodobě pronajatý spolehlivému páru (není součástí pronájmu)
Nebytový prostor (cca 17 m²) – v současnosti tetovací studio s hygienickým zázemím (WC, výlevka, umyvadlo).
Zimní zahrada (12 m²) – pro relax, ateliér či zimní odpočinek.
Terasa (125 m²) – prostorná, chráněná, ideální pro grilování nebo klidné večery.
Dílna (10 m²) s pochozí půdou a sklep (20 m²) – praktické zázemí pro hobby i sklad.
1. nadzemní podlaží (1. NP)
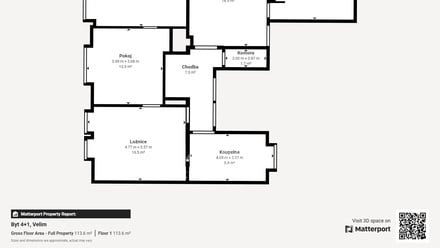
Byt 4+1 (113,6 m²) s vlastním vstupem.
Světlé, velkorysé prostory, podlahové topení v koupelně a chodbě, v ostatních místnostech radiátory.
Plynový kombinovaný kotel v samostatné technické místnosti.
2. nadzemní podlaží (2. NP)
Bytová jednotka přístupná přes 1. NP – ideální pro ateliér, hosty, nebo home office.
Před finálním dokončením – možnost úprav podle vkusu nového majitele.
Vytápění krbovou vložkou, připraven rozvod pro klimatizaci s funkcí topení.
Technické informace
Topení: plynové kotle, krb, podlahové topení (1. NP)
Okna: plastová, dvojskla
Střecha: po kompletní rekonstrukci
Rozvody: nové elektro, voda, plyn
Internet: vysokorychlostní připojení
Parkování: bezproblémové před domem
Lokalita – Velim
Velim patří mezi vyhledávané obce v dojezdové vzdálenosti do Prahy i Kolína.
Najdete zde školu, školku, poštu, obchody, lékaře, sportoviště i vlakové spojení (trať Praha–Kolín).
Kolín – 10 minut autem nebo 2 zastávky vlakem
Praha (Černý Most) – cca 30 minut jízdy
Dálnice D11 – do 7 minut
Vlakové nádraží – jen 4 minuty pěšky
Pro koho je dům ideální
Vícegenerační rodinu
Podnikatele (salon, kancelář, ordinaci)
Investora – dům nabízí stabilní výnos z pronájmů
Nájem 40.000,- + 10.000 (energie)
Kauce 80.000,-
Provize 20.000,-
Na vyžádání zašlu 3D sken všech podlaží.
Pro domluvu prohlídky mě kontaktujte – rád vám dům osobně představím.
Údaje k nemovitosti
| Kategorie | Rodinné domy |
| Lokalita | Palackého 123, Velim |
| Okres | Kolín |
| Velikost | 5 a více pokojů |
| Užitná plocha | 270 m² |
| Podlahová plocha | 547 m² |
| Plocha pozemku | 488 m² |
| Zastavěná plocha | 258 m² |
| Plocha dílen | 10 m² |
| Počet podlaží | 3 |
| Stav objektu | Po rekonstrukci |
| Budova | Cihlová |
| Typ domu | Patrový |
| Poloha objektu | Řadový |
| Zástavba | Obytná |
| Zařízený | Částečně |
| Míst k parkování | 2 |
| Parkování | Ano |
| Výtah | ne |
| Balkón | ano (5 m²) |
| Terasa | ano (125 m²) |
| Sklep | ano (15 m²) |
| Komunikace | Asfaltová |
| Telekomunikace | Internet |
| Doprava | Vlak, Dálnice, Silnice, Autobus |
| Voda | Dálkový vodovod, Studna |
| Elektřina | 230V |
| Plyn | Plynovod |
| Odpad | Veřejná kanalizace |









































