Pronájem bytu 3+kk 71 m², Praha 10

- Adresa Pod strání 2165/29, Praha 10 - Strašnice
 - Ev. č. RT1609-924755
 - Typ byty 3+kk
 - Plocha 71 m²
 - Vlastnictví osobní
 
28 500 Kč za měsíc (4 817 Kč za m²/rok)
+ vratná kauce, provize rk, poplatky
Pronájem bytu 3+kk, 71 m², Praha, ul. Pod strání
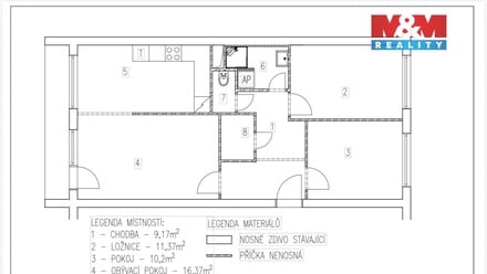
Nabízíme k pronájmu světlý a zcela nově zrekonstruovaný byt 3+kk o rozloze 71 m², situovaný v klidné části Strašnic, pouhých 300 metrů od stanice metra Skalka (linka A). Byt se nachází v 6. patře udržovaného panelového domu s výhledem do zeleně a nabízí optimální podmínky pro rodinné bydlení. Dispozice bytu zahrnuje prostorný obývací pokoj s kuchyňským koutem, dvě neprůchozí ložnice, koupelnu se sprchovým koutem, samostatné WC, praktickou komoru/šatnu a lodžii. K bytu náleží komora na chodbě a sklepní kóje. V okolí najdete kompletní občanskou vybavenost - školy, obchody, lékárnu, poštu i zdravotní středisko. Možnost pronájmu garáže přímo u vchodu. Byt je ideální volbou pro rodiny hledající pohodlné a klidné bydlení. Pro více informací nás neváhejte kontaktovat.
Údaje k nemovitosti
| Kategorie | Byty 3+kk | 
| Lokalita | Pod strání 2165/29, Praha 10 - Strašnice | 
| Okres | území Hlavního města Prahy | 
| Vlastnictví | Osobní | 
| Užitná plocha | 71 m² | 
| Počet podlaží | 6 | 
| Podlaží umístění | 6. NP | 
| Stav objektu | Velmi dobrý | 
| Budova | Panelová | 
| Typ domu | Patrový | 
| Umístění objektu | Klidná část obce | 
| Zařízený | Ne | 
| Bezbariérový | ne | 
| Výtah | ano | 
| Lodžie | ano | 
| Voda | Dálkový vodovod | 
| Plyn | Plynovod | 
| Odpad | Veřejná kanalizace | 
| Zdroj topení | Ústřední dálkové | 
















