Pronájem bytu 3+kk 44 m², Chrášťany

- Adresa Chrášťany 71
- Ev. č. RT1189-31944
- Typ byty 3+kk
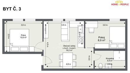
- Plocha 44 m²
- Vlastnictví osobní
15 000 Kč za měsíc (4 091 Kč za m²/rok)
poplatky 5.000,-Kč (elektřina, voda, popelnice) pro dvě osoby, provize RK, kauce
Pronájem bytu 3+kk 44 m², Chrášťany
Ve výhradním zastoupení majitele pronájem bytu 3+kk, 44m² v obci Bylany u Českého Brodu s malou zahrádkou v přízemí domu, která bude společná pro všechny bytové jednotky v domě. Bytová jednotka momentálně prošla kompletní rekonstrukcí. Úplně nová kuchyňská linka včetně myčky. Jinak je byt bez vybavení. V koupelně najdete sprchový kout, umyvadlo a wc. Hledáte klid v dojezdové vzdálenosti do Prahy, Českého Brodu či Kolína? Neváhejte mě kontaktovat pro více informací nebo prohlídku. Byt je volný od 15.10.2025 nebo dle dohody. Pronajímatel si vyhrazuje právo vybrat zájemce na základě jím zvolených kritérií. Ev. číslo: 31944.
Velmi nehospodárná F
Údaje k nemovitosti
| Kategorie | Byty 3+kk |
| Lokalita | Chrášťany 71 |
| Okres | Kolín |
| Vlastnictví | Osobní |
| Užitná plocha | 44 m² |
| Podlahová plocha | 44 m² |
| Počet podlaží | 2 |
| Podlaží umístění | 2. NP |
| Stav objektu | Dobrý |
| Budova | Cihlová |
| Datum nastěhování | Ihned |
| Zařízený | Ne |
| Míst k parkování | 1 |
| Parkování | Ano |














