Pronájem bytu 2+1 63 m², Uherské Hradiště

- Adresa Štěpnická 1067, Uherské Hradiště
- Ev. č. RT1403-03333
- Typ byty 2+1
- Plocha 63 m²
- Vlastnictví osobní
13 400 Kč za měsíc (2 552 Kč za m²/rok)
+ záloha na služby a energie ve výši 2.251 Kč+ elektřinu 1.000 Kč a plyn 300 Kč si přepisuje nájemce na sebe
Pronájem, byt 2+1, 64 m2, Uherské Hradiště, ulice Štěpnická
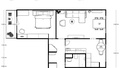
Největší z dostupných bytů této dispozice, zrekonstruovaný se zděným jádrem, aktuálně řešen jako 2+1, kdy obývací pokoj má dva vstupy, jeden z chodby a druhý z kuchyně s jídelnou. Díky tomu můžete upravit dispozici na 3+1, tedy na dvě samostatné ložnice a neprůchozí obývací pokoj. Jedna z ložnic nabízí vstup na prostornou lodžii orientovanou na jižní stranu. Kuchyně je vybavena sporákem a vestavnou lednicí, pod linkou je prostor a přípojky pro myčku a pračku, dále úložné prostory a vestavné skříně. Ve vstupní chodbě je šatna s dostatkem úložných prostor, vstupy do koupelny s vanou, do ložnice, obývacího pokoje a kuchyně s jídelnou.
Užitková plocha 63,57 m2, podlahová plocha 62,60 m2, k bytu náleží sklepní kóje a společná kolárna a kočárkárna.
Kolem domu byla vytvořena nová parkovací místa. K nastěhování od 1.12.2025.
Údaje k nemovitosti
| Kategorie | Byty 2+1 |
| Lokalita | Štěpnická 1067, Uherské Hradiště |
| Okres | Uherské Hradiště |
| Vlastnictví | Osobní |
| Užitná plocha | 63 m² |
| Počet podlaží | 8 |
| Podlaží umístění | 7. NP |
| Stav objektu | Velmi dobrý |
| Budova | Panelová |
| Datum nastěhování | Ihned |
| Zařízený | Ano |
| Bezbariérový | ano |
| Výtah | ano |
| Lodžie | ano (5 m²) |
| Sklep | ano (2 m²) |
| Komunikace | Betonová, Asfaltová |
| Telekomunikace | Internet, Kabelová televize, Kabelové rozvody |
| Doprava | Vlak, Silnice, MHD, Autobus |
| Voda | Dálkový vodovod |
| Elektřina | 230V |
| Plyn | Plynovod |
| Odpad | Veřejná kanalizace |

Palackého náměstí 175
Uherské Hradiště
+420 603 744 244
machacek@remach.cz
Zobraz 40 nabídek
























