Prodej vily 373 m², Praha 9

- Adresa Pplk. Nováčka, Praha 9
- Ev. č. RT1714-0024
- Typ vila
- Plocha 373 m²
rezervováno
Novostavba vily LUXURY s 3 byty 4+KK s vlastními zahradami přes 200m2 Praha 9 - Běchovice
Ve spolupráci s developerem Vám nabízíme unikátní nemovitost, která propojuje výhody bydlení v rodinném domě a současně v údržbově nenáročné nemovitosti. Toužíte po vlastním domě v okrajové části Prahy, avšak nechcete do údržby investovat mnoho svého času a energie a rodinný dům je pro Vás jednoduše moc náročný? Přesně pro Vás je určena naše nabídka.
Nabízíme k prodeji 3 bytové jednotky ve vile LUXURY - nový developerský projekt na krásném místě v Praze 9 - Běchovicích. Jedná se o dvoupodlažní stavbu, ve které bude mít každý byt v dispozici 4+KK vlastní zahradu přes 200m2 (přesná plocha zahrady bude doplněna po zaměření geodetem) Jedná se o skvělou variantu pro rodiny s dětmi, jelikož se nachází v bezpečné a klidné lokalitě s blízkostí škol, parků a dalších atrakcí pro děti. Každý z bytů bude mít prostornou terasu, soukromé parkování pro 2 vozy a zachováno bude naprosté soukromí díky oplocení vlastní zahrady. Právě lokalita a umístění tohoto projektu je obrovskou přidanou hodnotou této nabídky, neboť najdete jen málo podobně krásných, útulných a bezpečných míst v této lokalitě a její staré zástavbě. K dispozici jsou:
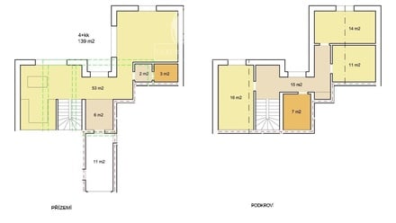
Byt č.1 - 4KK 114m2 s vlastní zahradou přes 200m2, 2 parkovací stání
Byt č.2 - 4KK 119m2 s vlastní zahradou přes 200m2, 2 parkovací stání
Byt č.3 - 4KK 140m2 s vlastní zahradou přes 200m2, 2 parkovací stání
Možnost klientských změn v rámci vnitřního vybavení bytu. Kuchyňská linka není součástí. Tento bytový dům bude zhotoven ve vysoké kvalitě a s použitím vysokého standardu. Vytápění bude zajištěno tepelným čerpadlem (vz-vo) a elektrická energie řešena pomocí fotovoltaiky. Jedná se tedy mimo jiné o energeticky soběstačnou stavbu, jejíchž nízké provozní náklady jistě v budoucnu oceníte. Voda z řádu, popřípadě vlastní studna na závlahu zahrad. Kanalizace v řádu.
Předpokládaná kolaudace a předání 4Q2023 - 1Q2024
Pozemek, na kterém tato stavba bude zhotovena, se nachází v klidné a málo frekventované ulici v Praze 9 - Běchovicích. tato lokalita je vyhledávána především pro její klid, mnoho zeleně a sportovišť, plnou občanskou vybavenost, velmi rychlé spojení s centrem Prahy, ale také díky rychlému napojení na hlavní silniční tahy.
Více informací získáte u makléře. Financování hypotéčním úvěrem Vám rádi zajistíme u Vámi preferované banky za nejlepších podmínek na trhu.
Těšíme se na Vás - LUXURY REAL ESTATE CZ
Údaje k nemovitosti
| Kategorie | Vila |
| Lokalita | Pplk. Nováčka, Praha 9 |
| Okres | území Hlavního města Prahy |
| Velikost | 5 a více pokojů |
| Užitná plocha | 373 m² |
| Plocha pozemku | 600 m² |
| Zastavěná plocha | 245 m² |
| Plocha zahrady | 600 m² |
| Počet podlaží | 2 |
| Stav objektu | Novostavba |
| Budova | Cihlová |
| Typ domu | Přízemní |
| Poloha objektu | Samostatný |
| Umístění objektu | Klidná část obce |
| Zástavba | Obytná |
| Rok výstavby | 2023 |
| Zařízený | Částečně |
| Míst k parkování | 6 |
| Parkování | Ano |
| Plyn | Plynovod |
| Odpad | Veřejná kanalizace |



















