Prodej stavebního pozemku 1 094 m², Loukov

- Adresa Loukov
- Ev. č. RT1464-26964
- Typ pozemky pro bydlení
- Plocha 1 094 m²
2 067 660 Kč (1 890 Kč za m²)
Prodej stavebních pozemků Loukov, lokalita Nivky
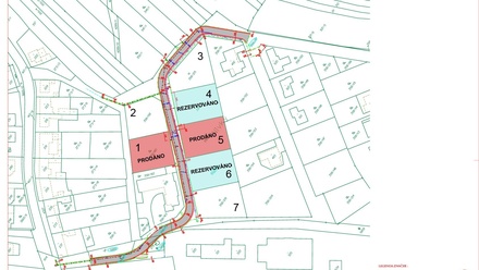
Představujeme Vám k prodeji poslední 3 stavební pozemky v obci Loukov, lokalita Nivky, s úchvatným výhledem na Hostýnské vrchy.
Pozemky jsou rovinaté, převážně obdelníkového tvaru (cca 30 m šířky a 40 m délky), což umožňuje velkou variabilitu při umístění Vašeho nového domu, jak z hlediska jeho rozměrů, tak orientace vůči světovým stranám.
Uzemním plánem je primárně umožněna výstavba rodinného domu dle podmínek BI 100 - bydlení individuální, s výškovou regulací max. 2 nadzemní podlaží a podkroví; případně další občanské vybavení a nevýrobní služby.
Pozemky jsou aktuálně užívány jako louka, jsou čísté bez staveb.
Lokalita je zasazená do místní části obce ve které se nachází již dvě zrealizované a obydlené ulice, z jižní části je tato lokalita lemována pěším osvětleným chodníčkem, za nímž navazuje část areálu místního zemědělského družstva ZEPO Loukov, a.s. ve kterém dochází pouze k jednorázové údržbě zemědělský strojů, nejedná se o celodenní či celoroční výrobu.
--------------------------------------------
Projekt Obce Loukov:
Jedná se o pozemky ve vlastnictví Obce Loukov, tudíž je v tomto projektu Obec aktivně zapojena.
Obec hledá takové kupující, kteří chtějí zahájit stavbu rodinného domu do 2 let od podpisu kupní smlouvy a do 5 let ho zkolaudovat tak, aby byly splněny podmínky pro přidělení čísla popisného a přihlásit obyvatele tohoto domu k trvalému pobytu.
Cena pozemků je jednotná 1.890 Kč/m2
--------------------------------------------
Inženýrské sítě:
Jsou navrženy v ulici na hranici pozemku, k dispozici nyní je již elektřina a vodovodní řád, obec dobuduje splaškovou a dešťovou kanalizaci, zpevněnou obecní komunikaci, veřejné osvětlení.
--------------------------------------------
Výhody pozemku a lokality:
v obci se nachází vše potřebné pro běžný život rodin:
- mateřská škola a základní škola pro 1. stupeň
- zájmová sdružení: myslivci, hasiči, kynologie, tenisti, sportovní kroužek
- v "Kulturáku", knihovna, hospůdka Ponorka a obchod s potravinami
- restaurace Randevů
- dětské hřiště, sportovní multifunkční hřiště – fotbal, tenis,...
- jedná se o přátelské sousedství bez rizika sociálně vyloučených lokalit
--------------------------------------------
Výborná dopravní dostupnost:
- autem do Bystřice pod Hostýnem (5min), Hranice (19min) nebo Valašské Meziříčí (24min),
- autobusové linky směr Bystřice pod Hostýnem a Valašské Meziříčí
- vlakové spojení směr Bystřice pod Hostýnem a Valašské Meziříčí
- cyklostezka směr Chvalčov, Bystřice pod Hostýnem a Osíčko
--------------------------------------------
Jedinečnost této lokality je zejména to, že se jedná o rovinaté pozemky s exkluzivním výhledem na panoramata Hostýnských vrchů s dominantami vrcholů Kelčský Javorník a Hostýn.
Lokalita kombinuje klid a kouzlo menší obce s výhodnou dostupností do větších měst. Skvělá příležitost pro ty, kteří hledají harmonii přírody a komfortní životní zázemí.
Kontaktujte nás pro další informace a domluvte si prohlídku tohoto jedinečného pozemku ještě dnes.
Údaje k nemovitosti
| Kategorie | Pozemky pro bydlení |
| Lokalita | Loukov |
| Okres | Kroměříž |
| Plocha pozemku | 1.094 m² |

















