Prodej rodinného domu 138 m², Svatý Mikuláš

- Adresa Krátká 237, Svatý Mikuláš
- Ev. č. RT1609-926409
- Typ rodinné domy
- Plocha 138 m²
9 350 000 Kč (67 754 Kč za m²)
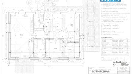
Prodej rodinného domu, 138 m², Svatý Mikuláš, ul. Krátká
Nabízíme přízemní rodinný dům o podlahové ploše 138 m², zastavěné 171 m². K prodeji bude předán s kolaudací plánovanou na březen 2026. Dům je velmi precizně zpracovaný, z prověřených a kvalitních materiálů. Dispozičně 5+kk, se dvěma koupelnami, technickou místností, obývacím pokojem s kuchyňským koutem, dvěma pokoji a pracovnou. Zděná stavba z Ytongu, zateplená, okna trojskla, předokenní žaluzie, foukaná izolace stropu, betonové tašky s povrchovou úpravou. Teplovodní podlahové topení čerpadlem Toshiba-voda, vzduch. Vnitřní klimatizační jednotky v každé místnosti, také příprava pro fotovoltaiku - rozvaděč i kabeláž. Dům je napojen na veřejný vodovod a kanalizaci. Energetická hodnota B - velmi úsporná. Příjemná lokalita menší obce s mateřskou školou, obchody, obklopená přírodou. Další MŠ a ZŠ, zdravotní středisko, obchody a restaurace jsou v Nových Dvorech 3 km. Do Kutné Hory je to 8 km. Velkým lákadlem je zámek Kačina, vzdálen 2 km, s anglickým parkem a naučnou stezkou.
Údaje k nemovitosti
| Kategorie | Rodinné domy |
| Lokalita | Krátká 237, Svatý Mikuláš |
| Okres | Kutná Hora |
| Velikost | 5 a více pokojů |
| Vlastnictví | Osobní |
| Užitná plocha | 138 m² |
| Plocha pozemku | 700 m² |
| Počet podlaží | 1 |
| Stav objektu | Ve výstavbě |
| Budova | Smíšená |
| Typ domu | Přízemní |
| Poloha objektu | Samostatný |
| Umístění objektu | Klidná část obce |
| Rok kolaudace | 2025 |
| Zařízený | Ne |
| Bezbariérový | ne |
| Míst k parkování | 2 |
| Parkování | Ano |
| Doprava | Silnice |
| Voda | Dálkový vodovod |
| Elektřina | 230V, 400V |
| Odpad | Veřejná kanalizace |
| Topné těleso | Podlahové vytápění |
| Zdroj topení | Tepelné čerpadlo |

















