Prodej rodinného domu 190 m², Miroslav

- Adresa Václavov, Miroslav
 - Ev. č. RT1592-28084
 - Typ rodinné domy
 - Plocha 190 m²
 
6 240 000 Kč (32 842 Kč za m²)
včetně provize
Prodej rodinného domu
Hledáte rodinné bydlení s potenciálem úprav podle vlastních představ? Nabízíme slunný dům v oblíbené obci Miroslav s garáží, prostornou zahradou a hospodářskou stavbou.
Dům byl kolaudován v roce 1970, je napojen na všechny inženýrské sítě a je určen k modernizaci, což umožňuje novému majiteli přetvořit jej podle vlastních představ.
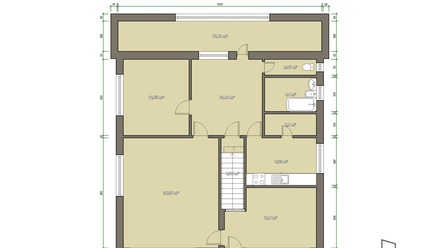
Rodinný dům má dvě podlaží. V přízemí se nachází prostorná hala s krbem, prádelna, technická místnost, sklad a garáž. Vytápění zajišťuje plynový kotel a ohřev vody elektrický bojler. V prvním nadzemním podlaží je kuchyň se spíží, jídelna, obývací pokoj se vstupem na balkon, ložnice, dětský pokoj, koupelna a samostatné WC. Na jídelnu navazuje zimní zahrada s plastovými okny, ostatní okna, vstupní dveře i garážová vrata jsou původní dřevěná.
Oplocený pozemek nabízí dostatek prostoru pro odpočinek i užitkové využití. Nachází se zde sklep na uskladnění úrody, pár hlav vinné révy a zatravněná část zahrady. Součástí je také zemědělská stavba o zastavěné ploše 47 m², která dříve sloužila k chovu zvířat, dnes může posloužit jako dílna, sklad nebo prostor pro podnikání.
Obec Miroslav je oblíbená pro svou výbornou dostupnost do Brna i Znojma a kompletní občanskou vybavenost – školku, školu, obchody, zdravotní středisko, sportoviště i kulturní zázemí.
Průkaz energetické náročnosti budovy (PENB) je ve fázi přípravy, proto uvádíme energetickou třídu G.
S financováním koupě vám rádi pomůžeme.
Pro více informací nebo domluvení prohlídky neváhejte kontaktovat makléře.
Údaje k nemovitosti
| Kategorie | Rodinné domy | 
| Lokalita | Václavov, Miroslav | 
| Okres | Znojmo | 
| Velikost | 4 pokoje | 
| Užitná plocha | 190 m² | 
| Podlahová plocha | 190 m² | 
| Plocha pozemku | 941 m² | 
| Zastavěná plocha | 109 m² | 
| Plocha zahrady | 738 m² | 
| Počet podlaží | 2 | 
| Stav objektu | Dobrý | 
| Budova | Smíšená | 
| Typ domu | Patrový | 
| Poloha objektu | Rohový | 
| Zástavba | Obytná | 
| Datum nastěhování | Ihned | 
| Rok kolaudace | 1970 | 
| Garáž | Ano | 
| Počet garáží | 1 | 
| Komunikace | Asfaltová | 
| Voda | Dálkový vodovod | 
| Elektřina | 230V, 400V | 
| Odpad | Veřejná kanalizace | 
| Topné těleso | Radiátory | 
| Zdroj topení | Plynový kotel | 
| Zdroj teplé vody | Bojler - elektro | 

Opletalova 1417/25
Praha 1
+420 704 532 094
podpora@reality-proradost.cz
Zobraz 599 nabídek































