Prodej rodinného domu 124 m², Drnholec

- Adresa Wolkerova, Drnholec
- Ev. č. RT1638-202426
- Typ rodinné domy
- Plocha 124 m²
info v RK
včetně provize, včetně právního servisu
Prodej rodinného domu 156 m², pozemek 2142 m² - Drnholec
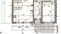
Hledáte ke koupi jedinečný bungalov o dispozici 4+kk v obci Drnholec. Dům tvaru ,, L“, který byl dokončen v roce 2020. disponuje užitnou plochou 124 m², ke které navíc přiléhá terasa o velikosti 32 m², orientovaná na jih. Prostorná zahrada 2 142 m², parkování na vlastním pozemku pro několik aut, vinný sklep, to je výčet několika benefitů tohoto celku. Tento dům, postavený ze stěnových panelů s dřevěnou sendvičovou konstrukcí a kvalitním zateplovacím systémem ETICS, vyniká skvělými izolačními vlastnostmi, jež zajišťují mimořádně nízké náklady na provoz. Díky energetické třídě B a těsnosti odpovídající pasivním domům získáte moderní a úsporné bydlení.
Dispozice zahrnuje prostorný obývací pokoj s jídelním koutem a kuchyňskou linkou vyrobenou na míru, dále ložnici, dětský pokoj a další místnost vhodnou například jako pracovnu. Všechny pokoje vyjma pracovny mají díky francouzským oknům přímý vstup na terasu, což nabízí skvělé propojení interiéru s exteriérem a dostatkem světla. Tento dům je nejen prakticky řešený, ale také maximálně komfortní – každý pokoj má podlahové vytápění se samostatnými termostaty, vytápění a ohřev vody zajišťuje tepelné čerpadlo se zásobníkem vody o objemu 200 litrů.
Jak už bylo řečeno, dům stojí na velkorysém pozemku o rozloze 2 142 m², který má jak užitný, tak i okrasný charakter a několik ovocných stromů navíc k tomu, velkou výhodou je přístup z druhé strany pozemku. Součástí pozemku je také parkovací stání pro 2 - 3 auta. Dům je umístěn ve vzdálenosti 20 metrů od silnice, což zajišťuje klid a soukromí. Milovníky vína jistě potěší netradiční vinný sklep v prostoru předzahrádky o velikosti 25 m², ideální pro skladování vín z místních vinic. Dalším benefitem je retenční nádrž na dešťovou vodu, kterou lze využít k zavlažování zahrady.
Dům se nachází v klidné části obce téměř na konci zástavby, což přispívá k celkovému pohodlí bydlení. V okolí se rozprostírají vinice, vinné sklepy a přírodní krásy Pálavy. Lokalita navíc disponuje výbornou občanskou vybaveností. V obci najdete základní a mateřskou školu, obchod COOP, lékárnu, zubní ordinaci, multifunkční hřiště, poštu i moderní kulturní dům. Dostupnost do Brna a Mikulova je od 15 do 30 minut. Blízké okolí nabízí široké možnosti rekreace, například Novomlýnské nádrže, Aqualand Moravia nebo Autokemp Merkur. Pro milovníky aktivního odpočinku jsou zde stezky pro pěší i cyklisty, rozhledny, známá farma a zahradnictví v Pasohlávkách. Rozvíjející se infrastruktura čínských lázní, dosah Pálavy jsou další bonusy, které táhnou, a to i s ohledem na hodnotu do budoucna.
Tento dům je ideální volbou pro rodiny, které hledají moderní a úsporné bydlení v klidném prostředí s výbornou dostupností služeb. Pokud sníte o domě s prostornou zahradou, vinným sklepem a výjimečnou polohou v malebné vinařské oblasti, neváhejte nás kontaktovat pro více informací nebo prohlídku.
Tento domov čeká právě na vás.
Údaje k nemovitosti
| Kategorie | Rodinné domy |
| Lokalita | Wolkerova, Drnholec |
| Okres | Břeclav |
| Náklady na bydlení | 3 500,- Kč |
| Velikost | 4 pokoje |
| Nízkoenergetický | ano |
| Užitná plocha | 124 m² |
| Podlahová plocha | 181 m² |
| Plocha pozemku | 2.142 m² |
| Zastavěná plocha | 151 m² |
| Počet podlaží | 1 |
| Stav objektu | Novostavba |
| Budova | Dřevěná |
| Typ domu | Přízemní |
| Poloha objektu | Samostatný |
| Umístění objektu | Klidná část obce |
| Zástavba | Obytná |
| Rok výstavby | 2020 |
| Zařízený | Částečně |
| Míst k parkování | 3 |
| Parkování | Ano |
| Terasa | ano (32 m²) |
| Sklep | ano (25 m²) |
| Komunikace | Dlážděná, Asfaltová |
| Telekomunikace | Telefon, Internet, Kabelové rozvody |
| Doprava | Dálnice, Silnice, MHD, Autobus |
| Voda | Dálkový vodovod |
| Elektřina | 230V, 400V |
| Odpad | Veřejná kanalizace |


























