Prodej rodinného domu 97 m², Dobříš

- Adresa Dobříš
- Ev. č. RT1566-01490
- Typ rodinné domy
- Plocha 97 m²
8 739 000 Kč (90 093 Kč za m²)
včetně DPH
Prodej rodinného domu 96,7 m², pozemek 1097 m²
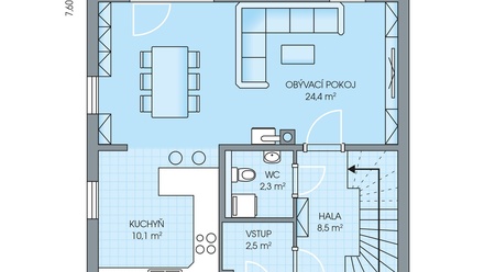
Prodám nízkoenergetický rodinný dům v těsné blízkosti Dobříše o dispozici 4+1 s podlahovou plochou 96,7 m².
Dům bude za uvedenou cenu kompletně dokončen a vybaven (včetně krbového komínu) a připraven k okamžitému nastěhování. Vnější i vnitřní provedení domu provedeme dle Vašeho individuálního výběru.
Dům je určen pro pohodlný život 4 členné rodiny. Bohatý vnitřní prostor zahrnuje v přízemí obývací pokoj s prakticky odděleným kuchyňským koutem, v patře ložnici a 2 dětské pokoje. Součástí rodinného domu je technická místnost, samostatná toaleta a samostatná koupelna.
V celkové ceně není zahrnuta spodní stavba a domovní přípojky inženýrských sítí.
Stavební pozemek o ploše 1097 m² se nachází na okraji Dobříše ve Staré Huti. Jedná se rohový pozemek, který je kompletně zasíťovaný: plyn, elektřina, voda a kanalizace.
Na pozemek je přístup po nové obecní asfaltové komunikaci s veřejným osvětlením. Je to krásné místo pro bydlení v nové zástavbě RD. V obci je kompletní občanská vybavenost, centrum Dobříše je vzdáleno pouhé 2 km. Skvělá dopravní dostupnost po D4 - autem je to 20 minut do Prahy.
Uvedená cena je včetně pozemku a DPH. Doba výstavby je 3 - 4 měsíce.
Údaje k nemovitosti
| Kategorie | Rodinné domy |
| Lokalita | Dobříš |
| Okres | Příbram |
| Velikost | 4 pokoje |
| Užitná plocha | 97 m² |
| Plocha pozemku | 1.097 m² |
| Stav objektu | Projekt |
| Budova | Cihlová |
| Typ domu | Patrový |
| Poloha objektu | Samostatný |




















