Prodej komerčního pozemku 2 404 m², Roudnice nad Labem

- Adresa Roudnice nad Labem
- Ev. č. RT1210-00047
- Typ pozemky pro komerční výstavbu
- Plocha 2 404 m²
6 490 000 Kč (2 700 Kč za m²)
Prodej pozemku 2 404 m², Roudnice nad Labem
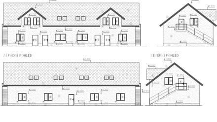
Prodej pozemku se stavebním povolením.
Nabízíme prodej stavebního pozemku o velikosti 2404 m2 s vydaným stavebním povolením pro výstavbu penzionu, oplocení, zpevněných ploch, výstavbu ČOV a napojení IS nedaleko Roudnice nad Labem. Jedná se o rovinatý pozemek o rozměrech cca 60 x 40 m, který se nachází přímo u obecní komunikace v okrajové části obce Černěves. Prostorové uspořádání připouští stavbu s jedním nadzemním podlažím a obytným podkrovím, se sedlovou střechou o zastavěné ploše 210 m2. Novostavba penzionu bude obsahovat celkem 6 samostatných, plně vybavených apartmánů. V 1.NP budou 4 apartmány o dispozici 2+kk a technická místnost, ve 2.NP budou 2 apartmány o dispozici 4+kk přístupné po vnějším schodišti. Vytápění domu je plánováno tepelným čerpadlem vzduch – voda, napojený na systém teplovodního vodovodního vytápění. V současné době se na pozemku nachází zemědělská stavba, která je na základě vydaného povolení určena k demolici. V okolí penzionu je také počítáno s dostatečným množstvím zpevněných ploch určených k parkování. Obec Černěves se nachází na pravém břehu řeky Labe, přibližně 40 km severozápadně od Prahy, a jen 7 km od sjezdu z dálnice D8 (exit 29). V obci je obchod, restaurace a prochází zde také velice oblíbená Labská cyklostezka. Veškerou občanskou vybavenost naleznete ve 3 km vzdálené Roudnici nad Labem, odkud je velmi dobré dopravní spojení např. do Prahy nebo Ústí nad Labem. U Roudnice nad Labem je také plánován nový terminál Vysokorychlostní trati (VRT).
Vlastnická práva k nabízenému pozemku nejsou nikým a ničím omezena, je tedy možné zahájit realizaci projektu téměř okamžitě.
V případě, že by měl budoucí vlastník zájem svůj pozemek ještě rozšířit, tak i tato varianta je možná.
Pro více informací kontaktujte makléře.
Údaje k nemovitosti
| Kategorie | Pozemky pro komerční výstavbu |
| Lokalita | Roudnice nad Labem |
| Okres | Litoměřice |
| Plocha pozemku | 2.404 m² |
| Poloha objektu | Samostatný |
| Zástavba | Obytná |
| Komunikace | Asfaltová |
| Doprava | Dálnice |
| Voda | Dálkový vodovod |
| Elektřina | 230V, 400V |
| Odpad | Veřejná kanalizace, ČOV pro celý objekt |






















