Prodej chaty 34 m², Dolní Zálezly

- Adresa Dolní Zálezly 189, Dolní Zálezly
- Ev. č. RT1660-27532
- Typ chata
- Plocha 34 m²
2 250 000 Kč (66 176 Kč za m²)
Prodej celoroční chaty, 34m2, Dolní Zálezly
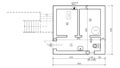
Nabízíme na prodej zděnou chatu o zastavěné ploše 34m2 v Dolních Zálezlech, kterou lze využívat k celoročnímu bydlení. V přízemí se nachází kuchyň s obývacím prostorem a koupelna s vanou a WC, v patře jsou 2 samostatné pokoje. Ve sklepním prostoru, který je přístupný z venkovní strany domu se nachází vstupní prostor, kotelna, vybavená dílna a toaleta s umyvadlem. Zahrada o celkové výměře 863m2 je svažitá. Stavba i pozemek jsou v osobním vlastnictví. Chata je připojena k elektřině, voda je rozvedena čerpadlem ze studny (vlastní vrt), odkanalizováno do žumpy na vlastním pozemku. Vytápění je zajištěno kotlem na tuhá paliva s rozvodem topení po domě, nebo krbem na dřevo. Ohřev vody bojlerem. Chata je ze tří stran zateplená. Plastová okna i dveře. Příjezd je po štěrkové komunikaci u které je k dispozici dostatek parkovacího místa až pro 5 aut. Na zahradě jsou ovocné stromy: 2x jabloň, třešeň a broskvoň, udírna, lanovka pro dopravu věcí k chatě. Pod terasou je sklep na uhlí a pod chatou je dílna, kotelna a WC se sprchovým koutem.
Údaje k nemovitosti
| Kategorie | Chata | 
| Lokalita | Dolní Zálezly 189, Dolní Zálezly | 
| Okres | Ústí nad Labem | 
| Velikost | 3 pokoje | 
| Užitná plocha | 34 m² | 
| Plocha pozemku | 882 m² | 
| Počet podlaží | 2 | 
| Stav objektu | Velmi dobrý | 
| Budova | Cihlová | 
| Typ domu | Patrový | 
| Poloha objektu | Samostatný | 
| Umístění objektu | Okraj obce | 



































