Prodej chalupy 213 m², Olešná

- Adresa Olešná 38, Olešná
- Ev. č. RT1363-28195
- Typ chalupa
- Plocha 213 m²
5 990 000 Kč (28 122 Kč za m²)
Prodej Rodinného domu, 213 m² - Olešná
Rodinný dům s rozlehlou zahradou v obci Olešná – klid a příroda na dosah
Hledáte klidné místo blízko přírody a zároveň vyžadujete prostornou zahradu a dům? Už nemusíte hledat dál! Nabízíme Vám rodinný dům s nádhernou zahradou v obci Olešná.
Lokalita:
Obec Olešná se nachází pouhých 15 minut jízdy od okresního města Písek (směr Tábor), 5 minut od městyse Bernartice a 15 minut od historického lázeňského města Bechyně. Nemovitost je situována v klidné horní části obce, mimo hlavní komunikaci.
Popis nemovitosti:
Dům byl postaven na půdorysu staré zástavby s novým podsklepením v letech 1993–1999. Pozemek o rozloze 1925 m² je čtvercového tvaru a přístupný ze dvou místních komunikací. Zahrada, navržená zahradním architektem, je oplocena kamenným plotem s dřevěnými prvky. Na pozemku se nachází stylový dřevník o velikosti 40 m² a skleník o velikosti 9 m². Vlastní studna zajišťuje dostatek vody pro nemovitost, zahradu a skleník. Dům je připojen na obecní kanalizaci.
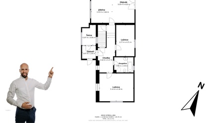
Dispozice domu:
Nemovitost nabízí možnost jednoduché úpravy na dvougenerační dům.
Byt 1: 3+kk, 95,2 m²
Byt 2: 5+kk, 117,8 m²
Celkem: 213 m²
Garáž/Dílna: 23,1 m²
Podsklepení: 35,8 m²
Vytápění:
Dům je vytápěn pomocí kamen na pevná paliva a sedmi elektrických radiátorů (11 kW). S investicí je možné přejít na ústřední vytápění s kotlem ve sklepě.
Uvedené výměry jsou orientační. V případě více zájemců bude nemovitost prodána nejlepší nabídce a majitel si vyhrazuje právo vybrat kupujícího na základě jím zvolených kritérií. Veškeré zveřejněné údaje obsažené v tomto inzerátu mají pouze informativní charakter a nejsou nabídkou ve smyslu § 1731 nebo § 1732 občanského zákoníku, ani se nejedná o veřejný příslib dle § 1733 občanského zákoníku.
Pokud Vás tato krásná nemovitost zaujala, neváhejte mě kontaktovat, velice rád Vám ho představím osobně!
Adresa nemovitosti je: Olešná 38, 398 43 Olešná, Jihočeský kraj.
Těším se na setkání s Vámi.
Petr Kopačka, realitní makléř
Údaje k nemovitosti
| Kategorie | Chalupa |
| Lokalita | Olešná 38, Olešná |
| Okres | Písek |
| Velikost | 5 a více pokojů |
| Užitná plocha | 213 m² |
| Plocha pozemku | 1.925 m² |
| Stav objektu | Dobrý |
| Budova | Smíšená |
| Typ domu | Patrový |
| Poloha objektu | Samostatný |
| Umístění objektu | Okraj obce |
| Zástavba | Venkovská |
| Rok výstavby | 1999 |
| Zařízený | Ne |
| Garáž | Ano |
| Počet garáží | 23 |
| Výtah | ne |
| Sklep | ano (35 m²) |
| Doprava | Silnice, Autobus |
| Voda | Studna |
| Odpad | Veřejná kanalizace |









































