Pronájem bytu 2+kk 51 m², Praha - Nové Město

- Adresa Plavecká 400/12, Praha 2 - Nové Město
- Ev. č. RT1562-00095
- Typ byty 2+kk
- Plocha 51 m²
- Vlastnictví osobní
24 990 Kč za měsíc (5 880 Kč za m²/rok)
+ 6 000 Kč záloha na energie a služby + vratná kauce + provize RK
Pronájem bytu 2+kk 51 m², Praha - Nové Město
V srdci jedné z nejmalebnějších částí Prahy – Výtoň – Podskalí, nabízíme k pronájmu nádherně zrekonstruovaný a plně zařízený byt v 1. patře klasického činžovního domu s duchem staré Prahy. Místo, které si zamiluje každý, kdo hledá kombinaci klidu, elegance a městského života u řeky.
Byt se nachází v tiché ulici jen pár kroků od Vltavského nábřeží, oblíbené náplavky s farmářskými trhy, kavárnami a večerní atmosférou, kterou jinde v Praze nenajdete. Za rohem je botanická zahrada, památková zóna Vyšehrad, klášter Emauzy i povltavská cyklostezka – ideální místo pro ranní běh nebo procházku u vody. Lokalita nabízí i skvělou občanskou vybavenost v podobě stylových kaváren, vyhlášené restaurace a bistra, obchody, drogérie, lékárny a především perfektní dopravní spojení.
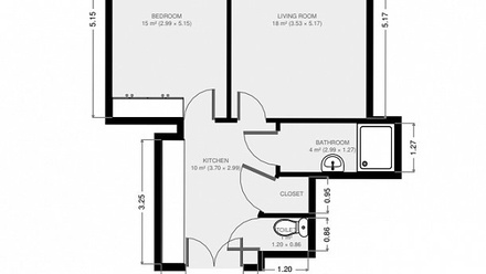
Byt je promyšleně dispozičně řešený tak, aby nabízel maximální pohodlí a praktické využití každého metru. Ze vstupní haly se vstupuje do plně vybavené kuchyně, která je součástí prostoru a nabízí vše potřebné pro každodenní vaření – myčku, mikrovlnnou troubu i kompletní kuchyňské vybavení. Na ni navazuje světlý obývací pokoj s rozkládací sedačkou a televizí, ideální pro odpočinek po dni ve městě.
Komfortní ložnice potěší dostatkem úložného prostoru díky velkorysým vestavěným skříním, zatímco moderní koupelna nabízí sprchový kout, vytápěnou podlahu a samostatnou toaletu. Praktickou součástí bytu je také technická místnost, která slouží jako úložný prostor a zároveň je vybavena pračkou s funkcí sušení.
Byt si přitom zachoval své původní kouzlo – vysoké stropy, velká okna a historické architektonické detaily mu dodávají charakter a eleganci. To vše je citlivě doplněno o moderní komfort, který splňuje nároky dnešní doby.
Prohlídky jsou možné po individuální domluv, nemovitost bude volná k 1.1.2026.
Údaje k nemovitosti
| Kategorie | Byty 2+kk |
| Lokalita | Plavecká 400/12, Praha 2 - Nové Město |
| Okres | území Hlavního města Prahy |
| Vlastnictví | Osobní |
| Užitná plocha | 51 m² |
| Podlaží umístění | 2. NP |
| Stav objektu | Velmi dobrý |
| Budova | Cihlová |
| Poloha objektu | Rohový |
| Umístění objektu | Centrum obce |
| Zástavba | Obchodní a obytná |
| Datum nastěhování | Ihned |
| Zařízený | Částečně |
| Výtah | ano |
| Sklep | ano (3 m²) |
| Komunikace | Asfaltová |
| Doprava | Vlak, Silnice, MHD, Autobus |
| Voda | Dálkový vodovod |
| Elektřina | 230V |
| Odpad | Veřejná kanalizace |


























