Prodej rodinného domu 132 m², Hradec Králové - Věkoše

- Adresa Hradec Králové - Věkoše
- Ev. č. RT1566-01444
- Typ rodinné domy
- Plocha 132 m²
15 250 000 Kč (115 530 Kč za m²)
včetně DPH
Prodej rodinného domu 132,3 m², pozemek 453 m²
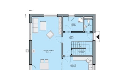
Prodám nízkoenergetický rodinný dům o dispozici 5+1 s podlahovou plochou 132,3 m².
Dům je určen pro pohodlný život až 6 členné rodiny. Bohatý vnitřní prostor zahrnuje v přízemí obývací pokoj s prakticky odděleným kuchyňským koutem a v patře ložnici a 2 dětské pokoje. Součástí rodinného domu je šatna, technická místnost, samostatné WC a samostatná koupelna.
Dům bude za uvedenou cenu kompletně dokončen a vybaven a připraven k okamžitému nastěhování. Vnější i vnitřní provedení domu provedeme dle Vašeho individuálního výběru (podl. krytiny, obklady, dlažby, sanitární keramika, vnější i vnitřní dveře a okna, barva a provedení fasády a střešní krytiny apod.).
Vytápění bude řešeno tepelným čerpadlem.
Věkoše leží severně od centra města Hradec Králové. Do centra města je to 6 minut autem. Nachází se tu veškerá občanská vybavenost, MHD, školy, školky. Nedaleko leží Správčický rybník, který můžete využít ke koupání, ale i k procházkám.
K patě pozemku jsou přivedeny tyto inženýrské sítě: rozvody NN, kanalizace, plynovod a vodovod.
Pozemek má výměru o rozloze 453 m2. Uvedená cena je včetně pozemku, základové desky, tepelného čerpadla a DPH. Doba výstavby jsou 3 – 4 měsíce.
Údaje k nemovitosti
| Kategorie | Rodinné domy |
| Lokalita | Hradec Králové - Věkoše |
| Okres | Hradec Králové |
| Velikost | 5 a více pokojů |
| Nízkoenergetický | ano |
| Užitná plocha | 132 m² |
| Plocha pozemku | 453 m² |
| Stav objektu | Projekt |
| Budova | Cihlová |
| Typ domu | Patrový |
| Poloha objektu | Samostatný |














