Prodej bytu 5+1 105 m², Nýrsko - Bystřice nad Úhlavou

- Adresa Bystřice nad Úhlavou 14, Nýrsko
- Ev. č. RT1652-00297
- Typ byty 5+1
- Plocha 105 m²
- Vlastnictví osobní
2 990 000 Kč (28 476 Kč za m²)
Možná sleva v případě prodeje společnosti (share deal)., včetně DPH, včetně poplatků, včetně provize, včetně právního servisu
Prodej bytu 5+1 a větší, 105 m², Nýrsko, Bystřice nad Úhlavou 14
Nabízíme k prodeji velmi prostorný byt o dispozici 5+1 a výměře 105 m², který se nachází ve 2. podlaží udržovaného, zatepleného domu v Bystřici nad Úhlavou, jen několik minut chůze do města Nýrsko.
K bytu náleží zahrada o výměře 201 m², ideální pro relaxaci nebo rodinné posezení. Zahrada je orientovaná podél spodní fasády domu směrem k bystřickému zámku.
Podle nově vydaného SP lze rozšířit obývací pokoj bytové jednotky v podkroví spojením stávající kuchyně se sousední obytnou místností, provést instalaci krbu a úpravu střechy o mansardu s velkoplošným prosklením, které by otevřelo panoramatický výhled na okolní šumavské kopce.
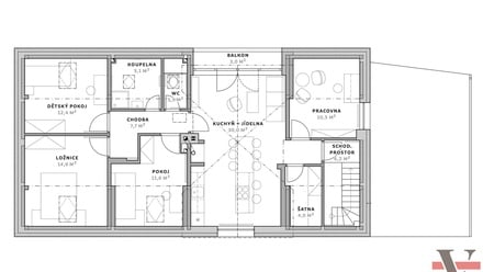
Současnou dispozici bytu tvoří pět neprůchozích pokojů, kuchyně, koupelna, samostatné WC a šatna. Byt nabízí příjemné, klidné bydlení s dostatkem prostoru pro rodinu. Vytápění zajišťuje plynový kotel, který přispívá k nízkým provozním nákladům. K bytu je nabízena sklepní kóje, s jejímž vybudováním je počítáno v suterénu domu.
Dům se nachází na vyvýšeném místě v klidné části obce, v jednosměrné ulici s výhledem na šumavské kopce a park bystřického zámku. Je napojen na obecní vodovod i kanalizaci. Kompletní rekonstrukce domu a bytových jednotek proběhla v roce 2020.
Rozsah provedené rekonstrukce
• Kompletní odkopání a odvlhčení objektu moderními materiály a zásypem
• Zateplení fasády a střechy, výměna oken za moderní plastová okna s trojskly, nová
• moderní střešní krytina. Výsledná energetická náročnost budovy je 54 kWh/m2/rok.
• Nové rozvody: vody, kanalizace, elektřiny
• Instalace centrálního kombinovaného kondenzačního plynového kotle pro vytápění a TUV.
• Nové zařizovací předměty v koupelnách
• Byty byly vybaveny kuchyňskými linkami se spotřebiči
• Nová nášlapná vrstva podlah
• Samostatné měření elektřiny i vody bytových jednotek
Obec Bystřice nad Úhlavou těsně sousedí s Nýrskem (2 km), které nabízí veškerou občanskou vybavenost. Náměstí, obchody, lékaři, restaurace, mateřská i základní škola jsou 2 km od domu. V Nýrsku je dále lyžařský svah, ledové kluziště, in-line dráha a veřejný venkovní bazén.
Kraj v okolí Nýrska je příjemnou a atraktivní lokalitou, právem nazývanou jako brána Šumavy. Za Nýrskem již stoupají turistické i cyklistické stezky k hranici CHKO a šumavskému hřebeni. Železná ruda s lyžařským areálem na Špičáku je necelých 25 minut jízdy autem.
Dobře dosažitelná jsou i větší města jako Klatovy (15 minut) nebo Domažlice (25 minut). Stejně na dosah jsou i nejbližší německé lyžařské a sportovní areály na svazích Velkého Javoru (Großer Arber) a v okolí Bodenmais.
Občanská vybavenost
• Klatovy (Kaufland, Lidl, Billa, Albert, OC Škodovka): 16 km / 20 min. autem
• Nýrsko (obchod s potravinami): 1,5 km / 3 min. (15 min. pěšky)
Dostupnost
• Klatovy 15km / 15 min
• Plzeň 58km / 58 min
• Praha (Zličín) 134km / 1 h 45 min
• Praha (centrum) 147km / 2 h 10 min
• Špičák (Železná ruda) 23km / 24 min
• Großer Arber 37km / 40 min
• Bodenmais 44km / 47 min
• Zwiesel (aquapark) 42km / 46 min
• Kvilda 67km / 1 h 10 min
V případě zájmu o prohlídku nás neváhejte kontaktovat.
Údaje k nemovitosti
| Kategorie | Byty 5+1 |
| Lokalita | Bystřice nad Úhlavou 14, Nýrsko |
| Okres | Klatovy |
| Typ bytu | podkrovní |
| Vlastnictví | Osobní |
| Užitná plocha | 105 m² |
| Počet podlaží | 2 |
| Podlaží umístění | 2. NP |
| Stav objektu | Velmi dobrý |
| Budova | Smíšená |
| Poloha objektu | Samostatný |
| Umístění objektu | Klidná část obce |
| Zástavba | Obytná |
| Zařízený | Částečně |
| Parkování | Ano |
| Výtah | ne |
| Sklep | ano |
| Komunikace | Asfaltová |
| Telekomunikace | Internet, Satelit |
| Doprava | Vlak, Silnice, Autobus |
| Voda | Dálkový vodovod |
| Elektřina | 230V |
| Plyn | Plynovod |
| Odpad | Veřejná kanalizace |

Drtinova 557/10
Praha 5
+420 724 111 177
office@vomastek.cz
Zobraz 13 nabídek

















