Prodej bytu 4+kk 73 m², Tišnov

- Adresa Na Rybníčku, Tišnov
- Ev. č. RT1074-D/RSB/201/24-11
- Typ byty 4+kk
- Plocha 73 m²
- Vlastnictví osobní
- Součástí developerského projektu Developerský projekt, Tišnov
9 842 800 Kč (134 833 Kč za m²)
cena včetně garáže a sklepní kóje
Prodej novostavby bytu 4+kk s garáží, Bytový dům Rybníček - Tišnov
Ve výhradním zastoupení investora vám nabízíme moderní byt 4+kk s balkónem a vlastní garáží, který je součástí zcela nového čtyřpodlažního bytového domu v projektu Bytový dům Rybníček. Dispozičně velmi dobře řešený byt se vyznačuje dostatkem úložného prostoru. K bytu dále náleží prostorná sklepní kóje.
Tento prostorný byt vyniká nadstandardním vybavením a moderním designem, který kombinuje vzdušný interiér s důrazem na praktičnost. Celý projekt je pečlivě zasazen do okolí a nabízí klidné prostředí v harmonii se zelení, přitom však zůstává ideálně propojen s městským životem.
Perfektní lokalita: Tišnov – klid, příroda a skvělá dopravní dostupnost
Bytový dům Rybníček se nachází ve vyhledávaném městě Tišnov, přímo pod malebným vrchem Klucaniny. Tato lokalita je ideální pro milovníky přírody, kteří si přitom chtějí zachovat pohodlný přístup k městské infrastruktuře. Vlakové a autobusové spojení do Brna je rychlé a pohodlné, díky čemuž je Tišnov atraktivní volbou pro každodenní dojíždění za prací, studiem nebo zábavou.
Samotný Tišnov nabízí kompletní občanskou vybavenost – mateřské a základní školy, vyhlášené gymnázium, střední škola, obchody, lékařskou péči, restaurace a kulturní i sportovní vyžití. Na své si přijdou také milovníci turistiky a cyklistiky, kteří ocení širokou síť stezek v okolí.
Bydlení, které spojuje příjemné s praktickým
Projekt Bytový dům Rybníček je ideálním řešením pro ty, kteří hledají moderní bydlení na klidném místě s vynikající dostupností do města. Kombinace kvalitního provedení, promyšleného designu a atraktivní lokality dělá z tohoto bytu jedinečnou příležitost pro vlastní bydlení nebo jako investici.
Pro více informací nás neváhejte kontaktovat a domluvte si osobní schůzku. Těšíme se na vás!
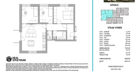
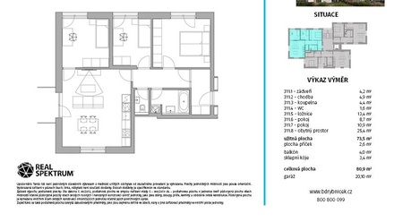
Dispozice: zádveří (4,2 m²), chodba (4,9 m²), pokoj s kuchyňským koutem (25,4 m²), pokoj (13,4 m²), pokoj (10,9 m²), pokoj (8,7 m²), koupelna (4,4 m²), WC (1,6 m²), balkon (4,0 m²), sklepní kóje (3,4 m²), garáž (20,1 m²)
Údaje k nemovitosti
| Kategorie | Byty 4+kk |
| Lokalita | Na Rybníčku, Tišnov |
| Okres | Brno-venkov |
| Vlastnictví | Osobní |
| Užitná plocha | 73 m² |
| Podlahová plocha | 81 m² |
| Počet podlaží | 4 |
| Podlaží umístění | 3. NP |
| Stav objektu | Ve výstavbě |
| Budova | Cihlová |
| Poloha objektu | Samostatný |
| Umístění objektu | Klidná část obce |
| Zástavba | Obytná |
| Garáž | Ano |
| Počet garáží | 1 |
| Balkón | ano (4 m²) |
| Sklep | ano (3 m²) |


























