Prodej bytu 4+kk 170 m², Ostopovice

- Adresa B. Němcové 496/7, Ostopovice
- Ev. č. RT1592-27668
- Typ byty 4+kk
- Plocha 170 m²
- Vlastnictví osobní
15 142 050 Kč (89 071 Kč za m²)
včetně poplatků, včetně provize, včetně právního servisu
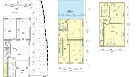
Prodej novostavby bytu 4+kk, 131 m², velká terasa 39 m² + vlastní parkování – Ostopovice u Brna
Jako vybraný zástupce majitele Vám exkluzivně nabízíme ke koupi moderní novostavbu bytu 4+kk o ploše 131 m² s velkou terasou 39 m² a vlastním parkovacím stáním. Byt se nachází v klidné části obce Ostopovice, v novém komorním domě se čtyřmi bytovými jednotkami.
Tato nabídka kombinuje komfort rodinného domu s praktičností bytu – soukromí, dostatek prostoru i skvělou dostupnost do Brna.
PROČ SI ZAMILUJETE TENTO BYT:
Vlastní terasa 39 m² - prostor pro relaxaci, grilování a rodinné chvíle
Vlastní parkovací místo - žádné starosti s parkováním
Soukromý vstup - pocit rodinného domu s praktičností bytu
Energetická třída A - minimální náklady na vytápění
15 minut do centra Brna - MHD i autem
Výkonná klimatizace - celé horní patro příjemně chladí i topí
DISPOZICE, KTERÁ DÁVÁ SMYSL:
Mezonetový byt s promyšleným řešením prostoru:
Prostorný obývací pokoj s kuchyní - přímý výstup na terasu
3 samostatné ložnice - ideální pro rodinu nebo home office
Technická místnost - dostatek úložného prostoru
Koupelna s WC + 1x samostatné WC - praktické řešení pro každodenní život
MODERNÍ STANDARD BEZ KOMPROMISŮ:
Rok dokončení 2025 - vše nové, bez skrytých vad
Trojskla + venkovní žaluzie - tepelný a akustický komfort
Podlahové vytápění - rovnoměrné teplo v celém bytě
Rekuperace vzduchu - zdravé prostředí celoročně
Kvalitní vinylové podlahy - krásné a praktické
LOKALITA, KTEROU OCENÍTE:
Ostopovice - to nejlepší z obou světů:
Kompletní občanská vybavenost - obchod, škola, školka
Cyklostezky a příroda - aktivní život přímo za dveřmi
Rychlé spojení s Brnem - dálniční přivaděč 5 minut autem
Klidné prostředí - pryč od městského ruchu, přesto blízko všemu
INVESTICE DO BUDOUCNOSTI:
Cena: 15 142 050 Kč (100 611 Kč/m²)
Férová cena pod brněnským průměrem
Energetická třída A = nízké náklady na vytápění
Rostoucí hodnota v atraktivní lokalitě
Možnost okamžitého nastěhování
Údaje k nemovitosti
| Kategorie | Byty 4+kk |
| Lokalita | B. Němcové 496/7, Ostopovice |
| Okres | Brno-venkov |
| Vlastnictví | Osobní |
| Užitná plocha | 170 m² |
| Podlahová plocha | 170 m² |
| Počet podlaží | 3 |
| Podlaží umístění | 2. NP |
| Stav objektu | Novostavba |
| Budova | Cihlová |
| Umístění objektu | Centrum obce |
| Datum nastěhování | Ihned |
| Rok kolaudace | 2025 |
| Zařízený | Ne |
| Bezbariérový | ano |
| Terasa | ano (39 m²) |
| Komunikace | Asfaltová |
| Telekomunikace | Internet |
| Voda | Dálkový vodovod |
| Elektřina | 230V |
| Plyn | Plynovod |
| Odpad | Veřejná kanalizace |
| Topné těleso | Podlahové vytápění |
| Zdroj teplé vody | Bojler - plyn |
Opletalova 1417/25
Praha 1
+420 704 532 094
podpora@reality-proradost.cz
Zobraz 613 nabídek







































