Prodej bytu 3+kk 80 m², Rychnov nad Kněžnou

- Adresa Mírová, Rychnov nad Kněžnou
- Ev. č. RT1255-00706
- Typ byty 3+kk
- Plocha 80 m²
- Vlastnictví osobní
4 990 000 Kč (62 375 Kč za m²)
vč. provize a pravního servisu
Prodej bytu 3+kk + 2 lodžie, 87,88 m² - Mírová, Rychnov nad Kněžnou
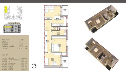
Nabízíme vám k prodeji bytovou jednotku o dispozici 3+kk o velikosti 79,77 m² + 2 lodžie o celkové ploše 8,11 m² v novostavbě projektu Resort Mírová. Byt se nachází ve 4. nadzemním podlaží.
Dispozice bytu: z předsíně je vlevo vstup do obývacího pokoje s kuchyňským koutem a přístupem na první lodžii. Přímo naproti vchodu se nachází samostatné WC, za ním následuje koupelna. Dále byt nabízí ložnici a další pokoj, který se nachází vpravo z předsíně a má vstup na druhou lodžii.
Bytové jednotky budou vybaveny vinylovými podlahami, keramickými obklady a dlažbou v koupelnách a toaletách, interiérovými dveřmi s obložkami a sanitou. Kupující si bude vybírat ze 6 odstínů vinylové podlahy, dlažby i dveří, takže si byt snadno přizpůsobíte svému vkusu. Kuchyňská linka není součástí vybavení – budoucí majitel si ji zvolí dle vlastních preferencí.
Standardem je bezbariérový přístup a moderní výtah.
Koupě bytu je podmíněná koupí alespoň jednoho garážového stání a sklepní kóje. Cena bytu je uvedená bez ceny garážového stání a sklepní kóje.
Koupi bytu v Resortu Mírová nabízí také velmi zajímavou investiční příležitost, jelikož se v okolí nachází provozovny velkých společností, jako např. Škoda auto, FAB, Bednar FMT, Sika CZ, Seko tool a další. Resort Mírová bude realizován v jihovýchodním cípu města a v jeho těsné blízkosti najdete veškerou občanskou vybavenost: školky, školy, obchody, restaurace atd.
Bytové jednotky budou v osobním vlastnictví a jejich koupi lze financovat hypotečním úvěrem, který vám v rámci našich služeb zařídíme za nejvýhodnějších podmínek na trhu a bez poplatků. Pro více informací a domluvení osobní schůzky nás neváhejte kontaktovat.
Údaje k nemovitosti
| Kategorie | Byty 3+kk |
| Lokalita | Mírová, Rychnov nad Kněžnou |
| Okres | Rychnov nad Kněžnou |
| Vlastnictví | Osobní |
| Užitná plocha | 80 m² |
| Podlahová plocha | 88 m² |
| Počet podlaží | 6 |
| Podlaží umístění | 4. NP |
| Stav objektu | Novostavba |
| Budova | Smíšená |
| Rok kolaudace | 2026 |
| Bezbariérový | ano |
| Garáž | Ano |
| Výtah | ano |
| Lodžie | ano (8 m²) |
| Sklep | ano |
| Telekomunikace | Internet, Kabelová televize |
| Doprava | Vlak, Silnice, MHD, Autobus |
| Voda | Dálkový vodovod |
| Elektřina | 230V |
| Odpad | Veřejná kanalizace |














