Prodej bytu 3+kk 87 m², Praha

- Adresa Nad Krocínkou, Praha
- Ev. č. RT1612-00102
- Typ byty 3+kk
- Plocha 87 m²
- Vlastnictví družstevní
3 618 248 Kč (41 589 Kč za m²)
+ anuita:14 062 461,-Kč možnost financovat úvěrem, včetně DPH, včetně poplatků, včetně provize, včetně právního servisu, cena k jednání
Prodej bytu 3+kk, 87m2 s terasou, Praha 9 - Prosek
3+kk, 87,4 m² + balkon 13,9 m² Nad Krocínkou III – novostavba pro rodiny (A2)
Prodáváme byt v projektu před dokončením 2Q/2026. Moderní a přitom perfektně dostupné bydlení v Praze 9? Tento byt 3+kk o výměře 87,4 m² + velkorysé dva balkony o celkové ploše 13,9 m², které vám nabídnou prostor, který se dnes u novostaveb jen těžko hledá.
Byt se nachází ve 3. nadzemním podlaží nového projektu Nad Krocínkou III od společnosti Finep. Díky své dispozici, velikosti místností a kvalitnímu standardu je ideální pro rodinu, která hledá dlouhodobé, pohodlné a bezstarostné bydlení.
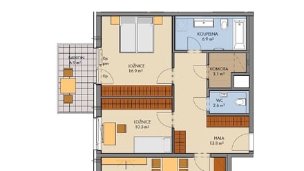
Hlavní výhody bytu
skutečně velký obývací pokoj s kuchyňským koutem
dvě plnohodnotné ložnice
prostorná vstupní hala (13,8 m²)
koupelna + samostatné WC
velký balkon 13,9 m² orientovaný do klidné části
komora v bytě + komora/sklep v domě
garážové stání v suterénu
nový, kvalitní standard Finep
nízké provozní náklady novostavby
Byt je dokončen ve standardu Finep a připravený k doplnění kuchyňské linky dle vašeho výběru.
Lokalita, která má vše
Nad Krocínkou je vyhledávaná část Prahy 9 díky propojení klidu, zeleně a výborné dostupnosti.
V docházkové vzdálenosti je metro Prosek, základní i mateřské školy, poliklinika, obchody, sportoviště a velké množství parků a míst pro volný čas.
Výborné napojení na Městský okruh a D8 dělá z této lokality jedno z nejlépe dostupných míst v rámci Prahy 9.
Finanční informace
Byt je nabízen formou družstevního bydlení s možností financovat hypotečním úvěrem.
Měsíční splátka anuity: 48 766 Kč + poplatky, které ještě nejsou stanoveny
Aktuální výše anuity: 14 062 461,-Kč ( zahrnuje byt, garážové stání i sklep)
Shrnutí
Velký byt 3+kk s nadstandardním balkonem, perfektní dispozicí, úložnými prostory, garážovým stáním a možností okamžitého nastěhování po dokončení. Skvělé bydlení pro rodinu v kvalitní novostavbě na Praze 9.
Údaje k nemovitosti
| Kategorie | Byty 3+kk |
| Lokalita | Nad Krocínkou, Praha |
| Okres | území Hlavního města Prahy |
| Typ bytu | jednopodlažní |
| Vlastnictví | Družstevní |
| Převod do OV | ne |
| Anuita | 14 062 461 Kč |
| Užitná plocha | 87 m² |
| Podlahová plocha | 101 m² |
| Počet podlaží | 10 |
| Podlaží umístění | 3. NP |
| Stav objektu | Ve výstavbě |
| Budova | Panelová |
| Poloha objektu | Samostatný |
| Umístění objektu | Klidná část obce |
| Zástavba | Obchodní a obytná |
| Rok kolaudace | 2026 |
| Zařízený | Ne |
| Garáž | Ano |
| Počet garáží | 1 |
| Výtah | ano |
| Terasa | ano (14 m²) |
| Sklep | ano (4 m²) |
| Komunikace | Asfaltová |
| Telekomunikace | Kabelová televize |
| Elektřina | 230V |
| Odpad | Veřejná kanalizace |
| Topné těleso | Radiátory |
| Zdroj topení | Ústřední dálkové |
Dubrovnická 1057/2
Praha 5
+420 725 293 154
reality@milanbrecka.cz
Zobraz 14 nabídek

















